东正·颐和府 | 17席合院别墅,容纳一生的归“墅”
扫描到手机,新闻随时看
扫一扫,用手机看文章
更加方便分享给朋友
四合院式的住房是我国最普遍、历史最为久远的住房形式。四合院的核心就是院子。院子不仅是交通、采光、通风的枢纽,更成为与家庭活动的中心。

每个国人心中,都有一处院子情结。正是这种源于骨子里的深深记忆和情愫,无数文人笔下的庭院方才如同一幅幅东方生活画卷,缓缓拉开序幕。让中国式的浪漫诗意,在庭院生活的雅趣中,酣畅淋漓呈现。
中国的传统文化,经过几千年的锤炼,早已内化在中国人的日常生活以及精神生活中。院子,作为中国历史中最典型的居住形态,是中国传统文化的载体,可以说,生活在现代都市的人们内心对传统文化都有一颗恭敬之心,对院落式的生活方式有一颗向往之心。
随着时代的进程,人们的生活方式的改变,人们身处繁华众中心,也能将传统文化底蕴纳于胸怀。将院子与城市天地叠合,空间的界限变得模糊,人们在院子中拥有的生活场景,院子又承载着城市的生活。

意境图

藏一片院落 | 偷得浮生半日闲
心系院居情怀的大有人在,但能拥有一片院落的人却少之又少。
东正·颐和府,综合人居典范的别墅和院落,独具匠心打造城市高净值客群量身打造的奢居范本院墅生活,营造奢华的私家院墅天地。墅境天成,致献塔尖成功人士,助其拥有一片充满人生情怀、写意居住的院落。

意境图

院落情结 | 清幽闲逸的出入静地
深深庭院,作为东方生活审美的一种方式;对于中国人而言,除了作为日常起居的生活空间,更是一种休养生息的精神家园。古代人们对于院落有一种深深的情结,尤其是满腹经纶的诗人、词人,不同的院落映照着他们不同的心性。

意境图
前纳门庭、后藏雅院,独辟天地于一隅。入院之时便是归家之刻,将其余喧嚣摒除身外,更加纯粹地保留了东方归家仪式中的安谧、礼序。
院门开,前庭端庄大气以迎八方宾客,后院清幽私密以尽诗书礼仪,内外皆以礼相通,新中式礼序相迎,世族风范地位尽显。

意境图
东正·颐和府248㎡墅院,凭借对中国人居文化的深研,回归传统居住意境,把建筑和庭院收纳其中,构成独门独院,收纳国人心中特有的礼制、山水、雅趣与情怀,唤醒国人骨子里的居住情结。

空间情境 | 多重空间 颠覆想象
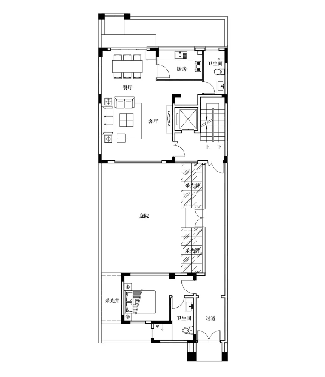
一层:家族荣耀区
家族礼序传承,墅造府院尊崇
私享入户花园,开门即是风景
私家入户花园、栽种四季芬芳,烦扰止步,归家心宁
一方庭院,安放我心
拥有一个庭院,回归自然与本我,沏茶读书,卧听风雨。一半是家,一半是风景。
奢阔尺度 对话城市望族尊荣
舒适双厅尺度,一体设计,大开间客厅连接餐厅厨房、奢华气度不彰自显,气派餐厅正对厨房,讲究盛大的生活排场,进退雍容,以奢阔尺度缔造无可复制的价值权重。

一层户型图
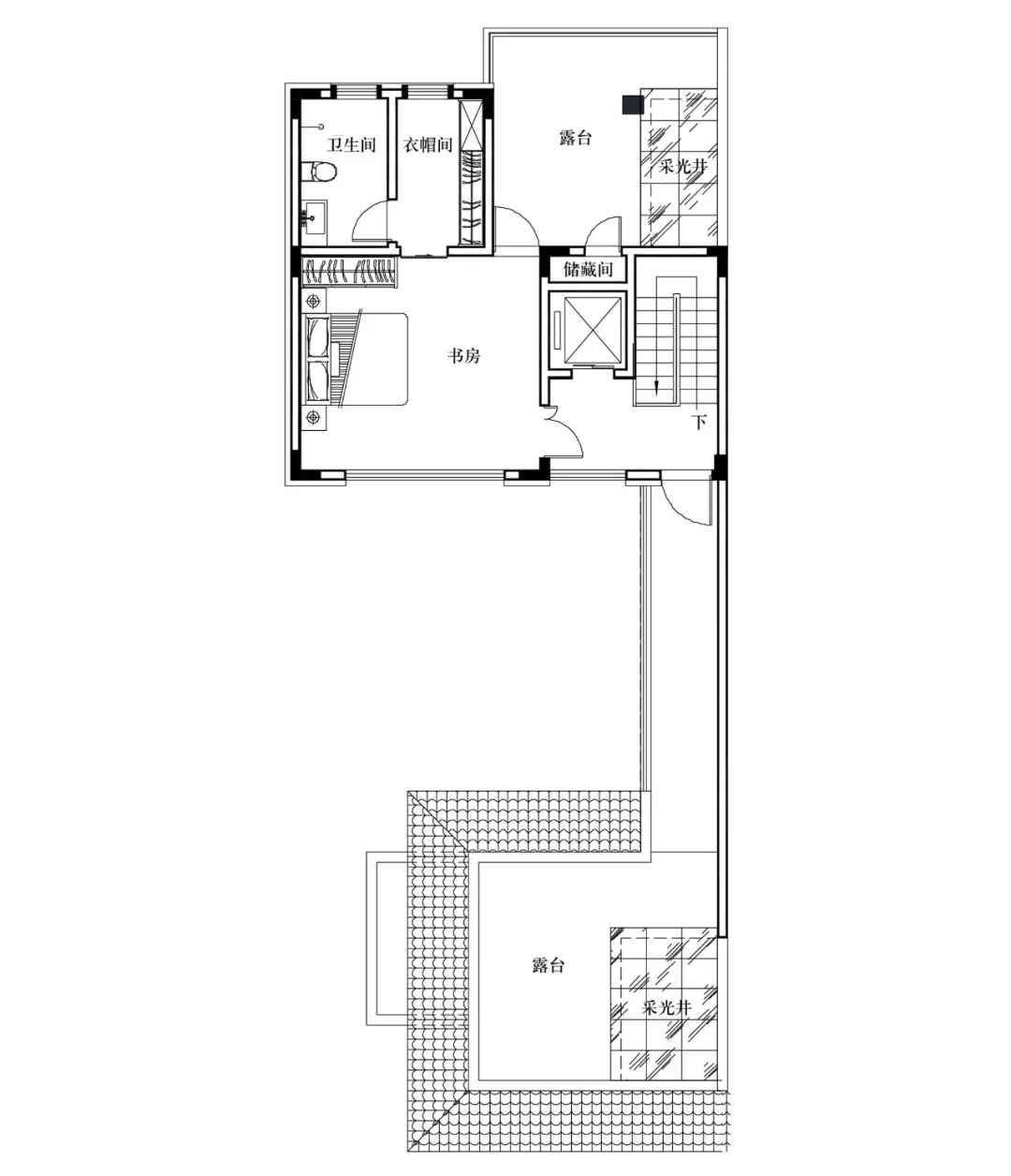
二层 家族尊居区
匹配先进人生该有的自我犒赏与生活品质
舒居生活,典藏人生
奢适双卧,别致书房,满足全家庭生活需求
开阔视野 揽一线风景
阳台加露台,视野优质开阔,近水楼台,揽一线风景,多视角情景生活体验
方正格局,尽享宽境人生
功能空间方正规整,奢阔尺度,合理生活动线。

二层户型图
三层:家族私密领地
阔绰套房,精琢主人尊享领地
多重享受,俯仰之间皆是美好
开放式书房,独立卫浴,专属衣帽间及储藏室,安放岁月静好
南北双露台,不负好时光
一处酿生活,一处酿诗意,看四季景色交替,增添更多生活情趣。

三层户型图
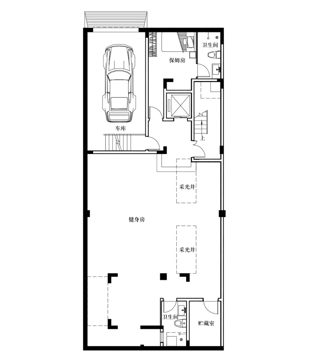
负一楼:家族休闲区
全家人的娱乐场,满足奢华生活享受
定制舒适空间
3采光井设计,全明通风,阳光惬意
功能灵动 百变空间
办公/沙龙/运动,盛放更多私人志趣。

负一层户型图
东正·颐和府建面约248㎡国风院落别墅,礼敬不凡!

声明:本文由入驻焦点开放平台的作者撰写,除焦点官方账号外,观点仅代表作者本人,不代表焦点立场。
